Attraktives Mehrfamilienhaus mit Gewerbeeinheit und viel Potenzial im idyllischen Tettenweis
94167 Tettenweis, Mehrfamilienhaus zum Kauf
Kontaktdaten
- NameHerr Daniel Schwarz
- AnschriftHenhart 27
94544 Hofkirchen - Telefon
Objektdaten
- Objekt-ID1455276154#MCOuX
- ObjekttypenHaus, Mehrfamilienhaus
- Adresse94167 Tettenweis
- Etagen im Haus3
- Wohnfläche ca.165 m²
- Nutzfläche ca.301 m²
- Grundstück ca.853 m²
- Zimmer15
- Schlafzimmer12
- Badezimmer2
- Wesentlicher EnergieträgerÖl
- Baujahr1964
- Letzte Modernisierung2001
- Zustandgepflegt
- AusstattungStandard
- Stellplätze gesamt9
- Käuferprovision3,57 % inkl. MwSt.
Die Vermittlungsprovision für den Käufer errechnet sich aus dem Kaufpreis. Sie beträgt inklusive der gesetzlichen Mehrwertsteuer 3,57 % und gilt mit Unterzeichnung des Kaufvertrages als verdient und fällig. - Kaufpreis395.000 EUR
Ausstattung / Merkmale
- ✓ Garage
- ✓ Gäste-WC
Energieausweis
- EnergieausweistypBedarfsausweis
- Ausstellungsdatumnach dem 1.5.2014
- Baujahr lt. Energieausweis1964
- PrimärenergieträgerÖl
- Endenergiebedarf134,80 kWh/(m²·a)
- EnergieeffizienzklasseE
Objektbeschreibung
Beschreibung
Es erwartet Sie eine solide Immobilie mit Gewerbe, Wohnen und großem Potenzial. Ein Mehrfamilienhaus in zentraler Lage, das Ihnen nicht nur ein Zuhause bietet, sondern Flexibilität, Wachstums- und Einkommensmöglichkeiten. Ob als renditestarke Kapitalanlage, großzügiges Mehrgenerationenhaus oder Kombination aus Wohnen und Arbeiten – dieses Haus erfüllt fast alle Wünsche auf einmal. Und das zu einem Preis, der in der heutigen Zeit selten geworden ist.
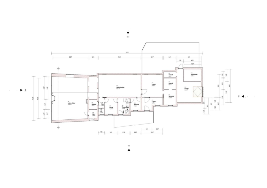
Erdgeschoss – Die attraktive Gewerbefläche
Im Erdgeschoss befindet sich eine große, helle Gewerbeeinheit mit ca. 220 m² Fläche, mit eigenem Eingang – gut sichtbar und leicht erreichbar. Die Schaufensterfront bietet Ihnen Werbemöglichkeit rund um die Uhr. Die Räumlichkeiten sind großzügig geschnitten und bieten:
- Separaten Büroraum
- Eigene Küche
- Eigenes WC
- Weitläufige Hauptfläche (flexibel nutzbar)
- Zugang zum Garten
- separate Garage
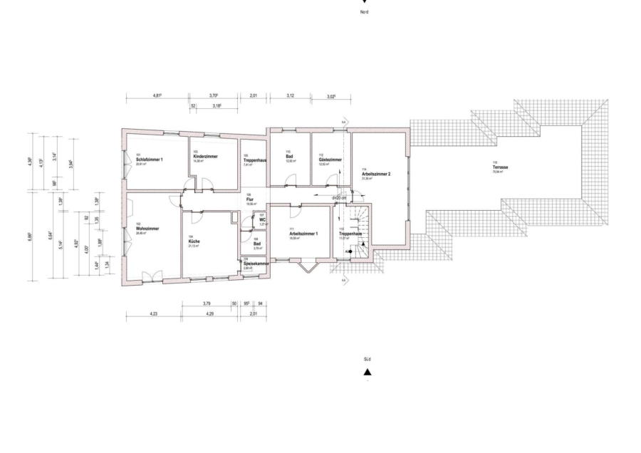
1. Obergeschoss – Großzügige und helle 7-Zimmer-Wohnung mit Traum-Dachterrasse
Ein langer, lichtdurchfluteter Flur verbindet alle Zimmer auf beiden Seiten und schafft ein einladendes Ambiente. Direkt auf der rechten Seite betritt man das große Wohnzimmer mit bodentiefer Glasfront und direktem Zugang zur beeindruckenden Dachterrasse. Hier können Sie die Sonne genießen und haben einen fantastischen Blick über den Ort und zur Kirche.
Das Zimmer auf der linken Seite verfügt über einen modernen Erker, der natürliches Licht flutet und den Raum noch einladender macht, gut geeignet als Lesezimmer oder zum Home-Office.
Rechts betreten Sie das zeitlos gestaltete Badezimmer mit Wanne, Dusche und Bidet. Dann befindet sich in etwa in der Mitte des Gebäudes ein zweiter Hausflur, der ebenfalls alle drei Etagen miteinander verbindet. Gegenüber ist ein zweckmäßiges zweites Badezimmer mit Wanne und einem separaten Gäste-WC.
Linker Hand gelangen Sie in das Herzstück des Anwesens, die große Wohnküche mit gemütlichem Essplatz, rustikaler Einbauküche und angrenzendem praktischen Vorratsraum mit viel Platz für Vorräte.
Zusätzlich gibt es noch zwei weitere Zimmer auf der rechten Seite und eines am Kopfende des Flures.
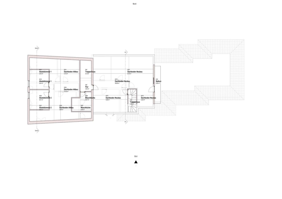
2. Obergeschoss/Dachgeschoss – Viel Potenzial
Drei Räume sind bereits teilweise ausgebaut und ein überdachter Balkon bietet Aussicht über die Dächer des Ortes hinweg. Der Rest des Dachgeschosses wartet nur auf Ihre Ideen!
Hier könnten Sie den Wert Ihres Hauses mit relativ wenig Aufwand spürbar steigern. Es besteht die Möglichkeit für zwei weitere komplette Apartments, oder stellen Sie sich ein gemütliches Einlieger-Studio mit romantischen Dachschrägen mit sichtbaren Holzbalken vor – eine Chance für kreative Erweiterungen
Insgesamt zwei Treppenhäuser verbinden die drei Etagen.
Außenbereich – klein aber fein mit viel Parkmöglichkeiten
- Pflegeleichter, komplett eingezäunter Garten mit Rasen und kleinen Bäumen
- Große Garage für ein Auto und weitere Werkstatt-/Lagerfläche
- 8 zusätzliche Stellplätze auf dem Grundstück – sehr gut für Familie, Gewerbe oder Mieter
Fazit
Ein seltenes Angebot: Solides Mehrfamilienhaus mit großer, flexibel nutzbarer Gewerbefläche, einer sehr großen Wohneinheit, riesiger Dachterrasse, reichlich Parkmöglichkeiten und weiterem Erweiterungspotential im Dachgeschoss. Ob als Kapitalanlage, Mehrgenerationenhaus oder Kombination aus Wohnen und Arbeiten – dieses Objekt überzeugt durch seine Großzügigkeit, die helle Raumaufteilung und besonderen Details (Erker, zwei Einbauküchen, Schaufensterfront).
Besichtigung lohnt sich – gerne zeigen wir Ihnen dieses besondere Haus vor Ort!
Für detaillierte Pläne, weitere Fotos oder einen unverbindlichen Besichtigungstermin kontaktieren Sie uns gerne. Wir freuen uns auf Ihre Nachricht
Ausstattung
Immobilie: Solides Mehrfamilienhaus mit umfangreicher Gewerbefläche im Erdgeschoss
Baujahr: 1964, Anbau 1982
Grundstück: 853 m²
Wohnfläche: ca. 165 m²
Nutzfläche: ca. 301 m² (inkl. Gewerbefläche von ca. 220 m², Garage, Nebenräume wie Ölheizungsraum)
Zimmer: 15 (12 Schlafzimmer, 2Bäder, 2 Gäste-WC, 2 Küchen mit Einbauküchen
Fenster: Kunststoff im Haupthaus, Holz im Anbau, 2-fach verglast
Böden: Fliesen, Teppich, Laminat, PVC
Heizung: Ölzentralheizung aus dem Jahr 2001
Parkmöglichkeiten: 1 Garage mit 1 Stellplatz, 8 Stellplätze auf dem Grundstück
Kaufpreis: 395.000 Euro
Herausragende Merkmale auf einen Blick
- Große, lichtdurchflutete Gewerbefläche (ca. 220 m²) mit separatem Eingang, Schaufensterfront, eigener Küche, WC und Büroraum – ideal für Werkstatt, Praxis, Büro, Laden oder Gastronomie
- komplett separate Einheiten (EG-Gewerbe + 1. OG + DG)
- Beeindruckende Dachterrasse mit Glasfront vom Wohnzimmer aus
- Zwei voll ausgestattete Einbauküchen (eine davon rustikal und besonders geräumig)
- Geräumige Garage und 8 weitere Außenstellplätze
- Komplett eingezäunter, pflegeleichter grüner Garten
- Dachgeschoss bereits teilweise ausgebaut mit überdachtem Balkon und weiterem Ausbaupotenzial
Sonstiges
Hinweis: Alle Angaben zu dieser Immobilie basieren auf Informationen des Eigentümers. Eine Haftung für die Richtigkeit oder Vollständigkeit der Angaben kann nicht übernommen werden.
Lage
Leben, wo andere Urlaub machen und trotzdem gut angebunden.
Das Anwesen befindet sich im Zentrum vom Ort Tettenweis, der mitten im beliebten Bäderdreieck (Bad Füssing 12 Min., Bad Griesbach 15 Min., Bad Birnbach 20 Min.) liegt.
Es handelt sich um eine gut angebundene Ortslage. Die Entfernung mit dem Auto beträgt zu Passau nur 30 Min., München unter 2 Std und zum A3-Anschluss Pocking nur 10 km.
Ärzte, Kindergarten & Grundschule finden sie im Ort. Thermen, Golfplätze und Rottal-Radweg sind direkt vor der Tür. Tettenweis verfügt über ein reges Vereinsleben allgemein mit vielen Sportarten und Naturfreibad.
Sie sehen gerade einen Platzhalterinhalt von Google Maps - WP-ImmoMakler. Um auf den eigentlichen Inhalt zuzugreifen, klicken Sie auf die Schaltfläche unten. Bitte beachten Sie, dass dabei Daten an Drittanbieter weitergegeben werden.
Mehr InformationenDie dargestellte Position der Immobilie ist nur eine ungefähre Angabe.
Ihr Ansprechpartner
Wir nehmen uns die Zeit Ihre persönlichen Wünsche kennenzulernen und stehen Ihnen mit Rat und Tat mit unserem Wissen und unserer Erfahrung im Raum Niederbayern & Oberbayern zur Seite.
Christoph Schwarz
Immobilienmakler IHK, 30 Jahre Selbständigkeit

























































